Sistema de agua potable «Vista Hermosa»

Publicada en Publicada en 2018

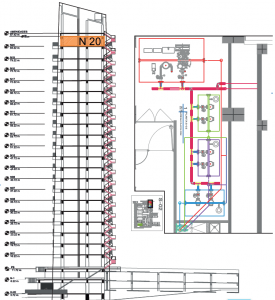
Este proyecto consistió en diseñar un sistema óptimo y adecuada de agua potable para el edificio, localizado en Tres Marías, Morelia Michoacán, dicho sistema se diseñó por medio de bombeo y almacenamiento, se utilizaron tuberías de distintos diámetros y una cisterna.